Ingéniosité avec style
Agencements sur-mesure pour une maison aux Sables d’Olonne
Contexte et Intentions
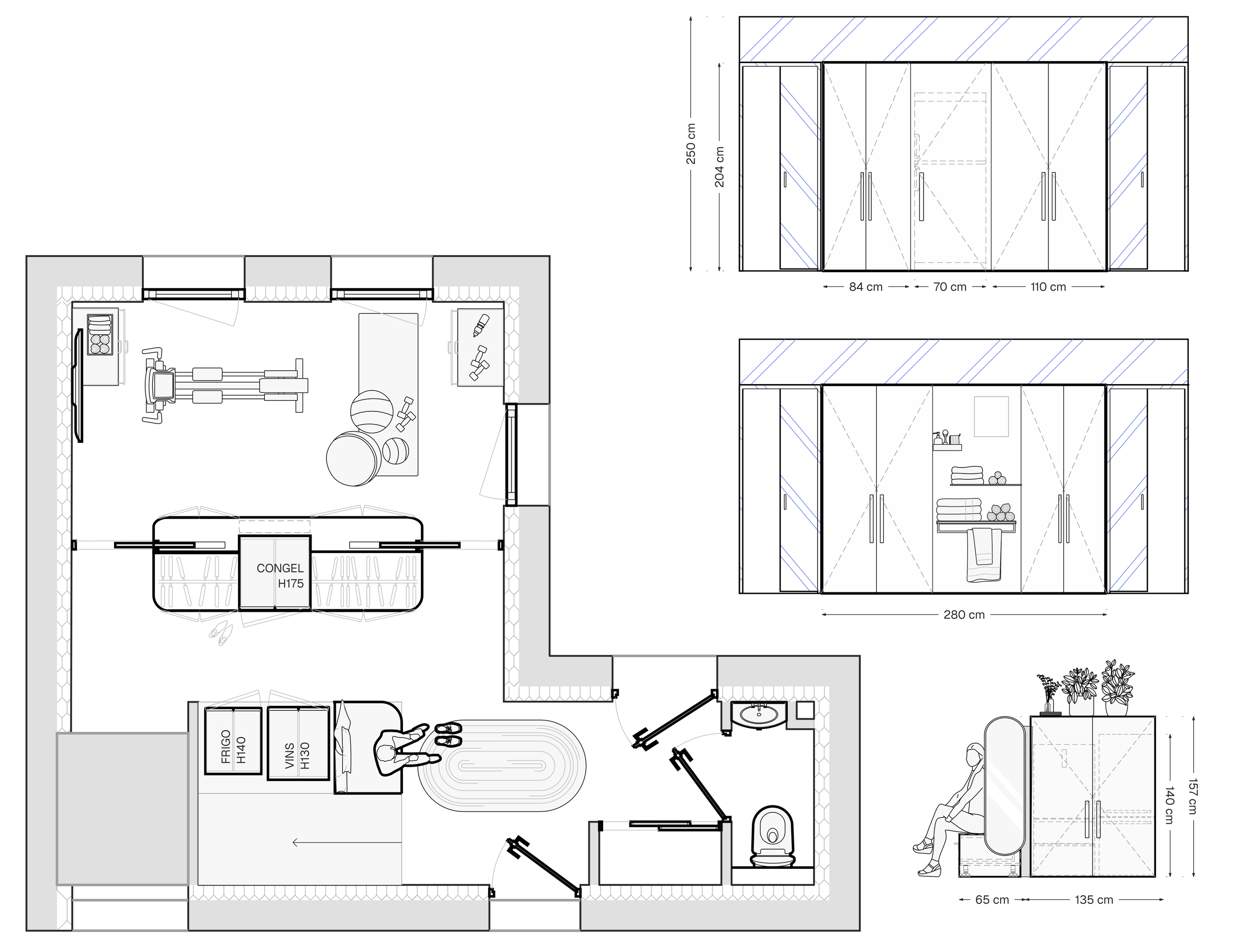
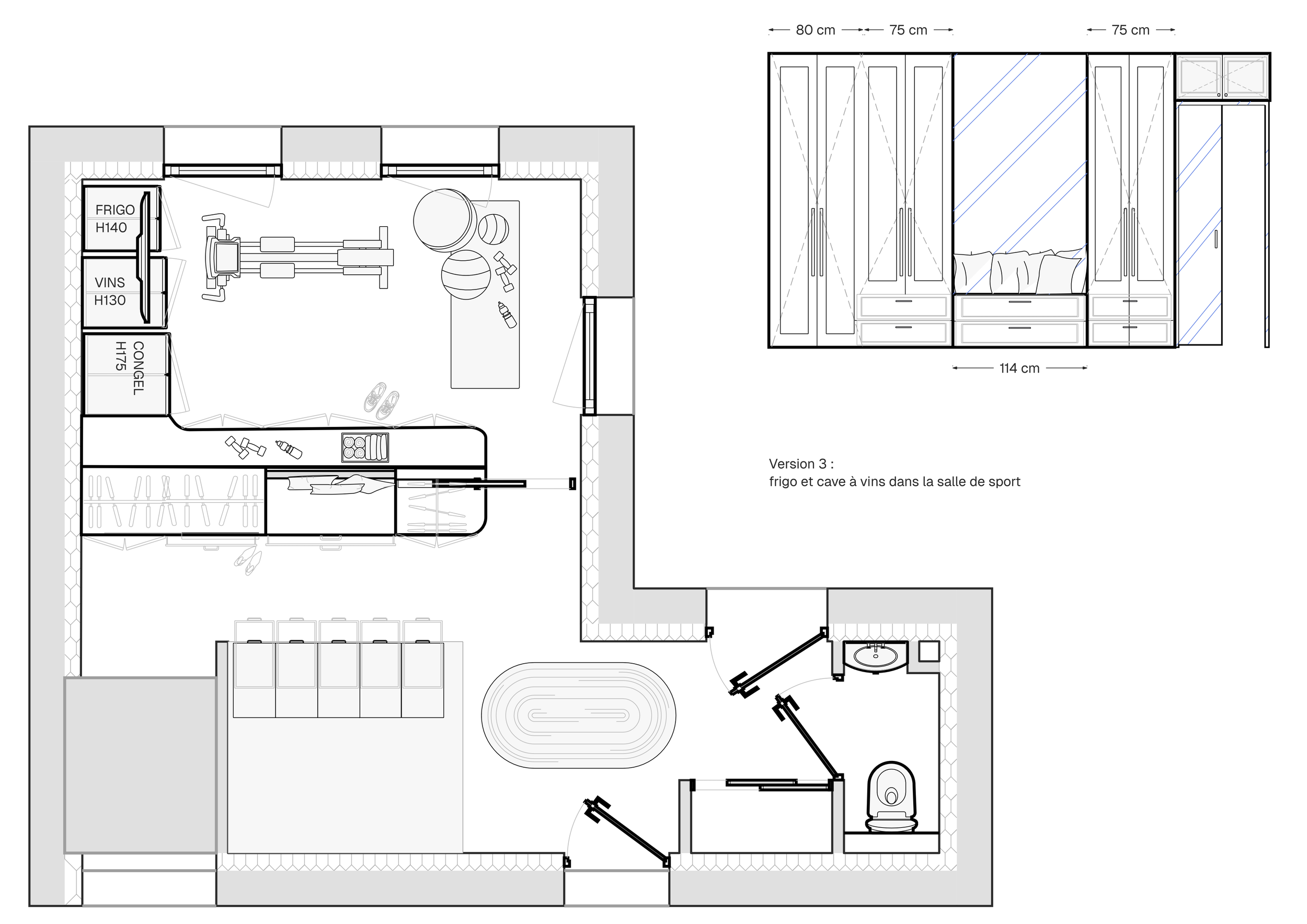
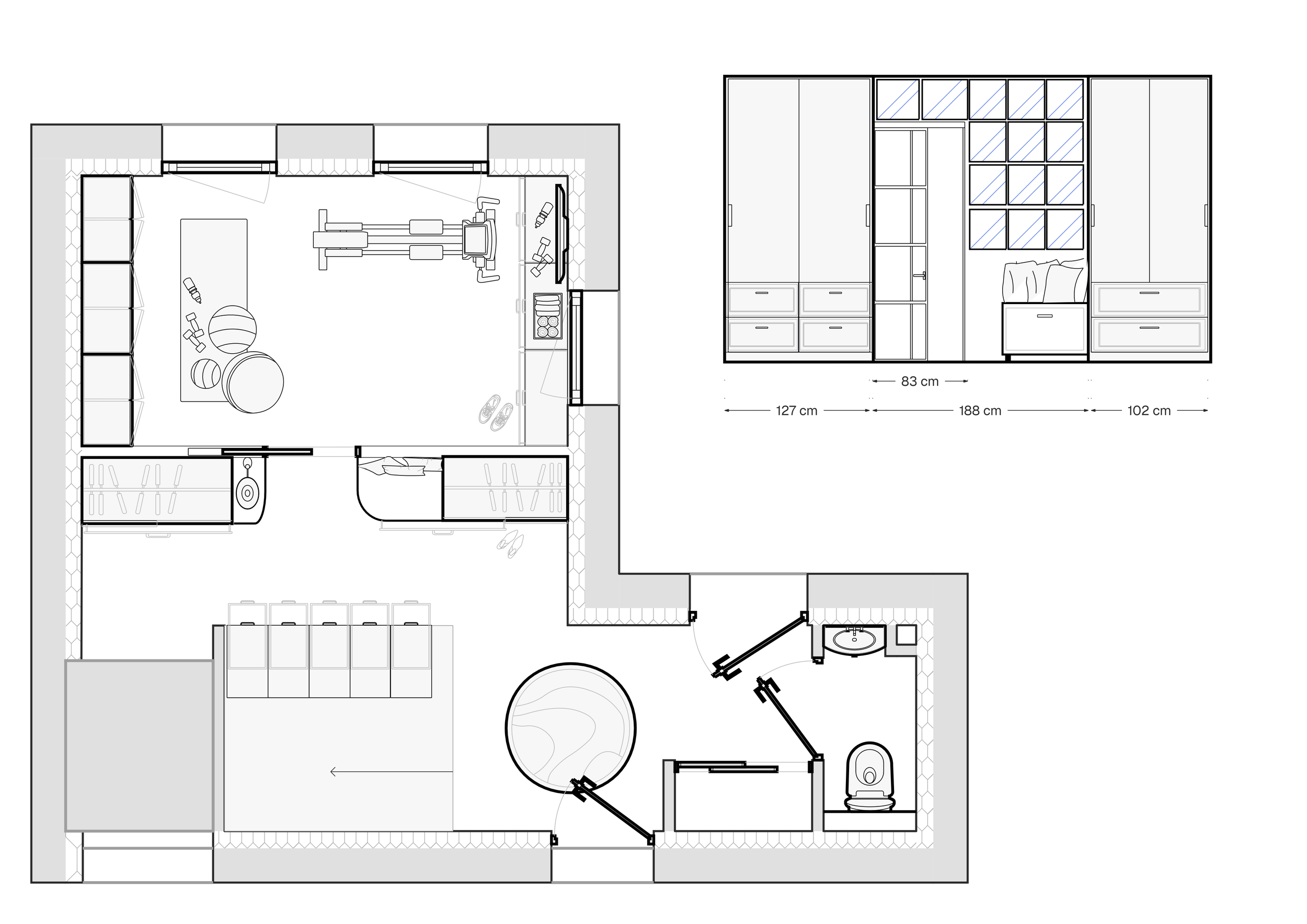
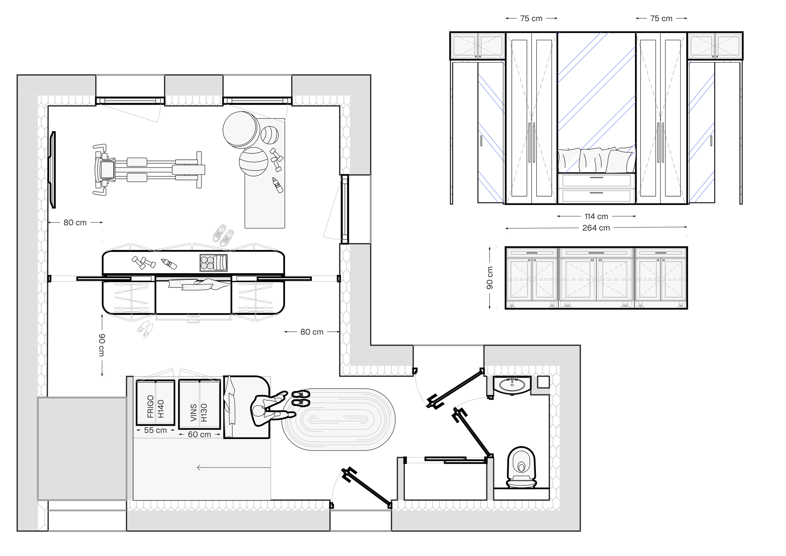
Au rez-de-chaussée, l’entrée s’ouvrait directement sur une salle de sport, sans véritable transition entre les deux espaces. Il était également nécessaire d’intégrer plusieurs équipements électroménagers pour créer une zone de type cellier discrète et fonctionnelle.
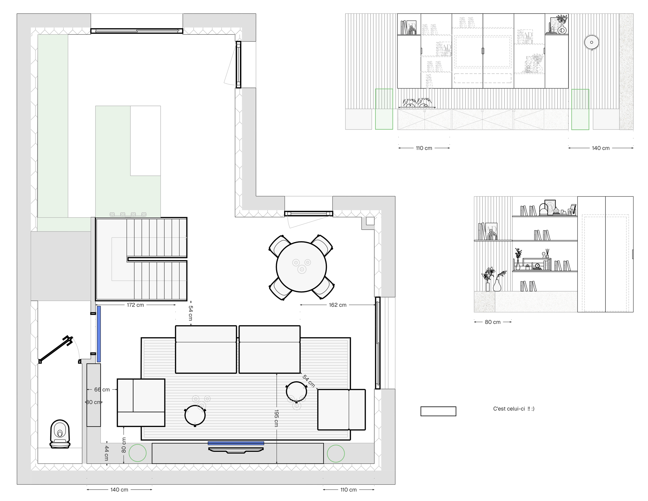
À l’étage, le salon présentait une contrainte particulière : une porte menant aux WC se trouvait dans l’axe principal de la pièce. Les propriétaires souhaitaient à la fois meubler et décorer cet espace tout en rendant cette porte beaucoup plus discrète.
✳️ Opportunité : la maison est neuve donc on partait d’une page blanche
✳️ Défi : la maison est neuve donc on ne pouvait rien déposer/démolir
Pour ce projet situé aux Sables d’Olonne, nous avons conçu plusieurs agencements sur-mesure destinés à structurer les espaces et à intégrer discrètement certaines fonctions du quotidien. L’intervention s’est concentrée sur deux niveaux de la maison : le rez-de-chaussée, où l’entrée devait être redéfinie, et l’étage, où le salon nécessitait à la fois du mobilier, de la décoration et une solution élégante pour dissimuler une porte peu idéalement placée.
Les propriétaires souhaitaient améliorer la lisibilité et le confort de certains espaces de la maison, tout en conservant une esthétique sobre et cohérente avec l’ensemble de l’habitation. L’objectif était de créer des agencements capables de structurer les volumes, d’intégrer des fonctions techniques et de participer pleinement à l’ambiance intérieure.
Avant
Esquisses et premières pistes
Pour le RDC :
✳️ Scénario 1 : meuble séparatif avec entrée centrale
✳️ Scénario 2 : meuble séparatif avec circulation autour
✳️ Scénario 3 : meuble séparatif avec entrée latérale
✳️ Scénario 4 : scenario 2 avec intégration d’un élément cellier supplémentaire
La phase d’intentions est celle où tout se joue :
comprendre le lieu, l’écouter, le faire parler.
J’explore alors plusieurs pistes d’aménagement
— entre fluidité des circulations, lumière, usages multiples…
Ces premières esquisses permettent de visualiser différentes logiques d’espace :
Esquisses et premières pistes
Pour le R+1 :
✳️ Scénario 1 : meuble TV/audio sur le côté de l’escalier
✳️ Scénario 2 : meuble TV/audio sur le mur face à la cuisine
Développement du projet
🎨 Palette matières & couleurs
🪑 Mobilier sur mesure et sélection déco
Après validation du concept, le projet entre en phase de développement :
définition précise des volumes, choix des matières et des couleurs, conception des éléments sur mesure.
C’est ici que l’identité du projet se révèle pleinement.
Suivi de chantier
Une fois le projet défini, vient la mise en œuvre : la transformation concrète du lieu. Cette étape, dans ce projet, a été sous la responsabilité de l’agenceur.
Bientôt, les photos de la réalisation finale.

