Quand un projet en inspire un autre
Rénovation d’un studio 28 m² à La Garenne-Colombes
Contexte et Intentions
✳️ Opportunités
L’état de certains éléments peut permettre du réemploi
De belles ouvertures et la lumière
Des clients ouverts et impliqués, une équipe d’artisans déjà rôdée aux projets murmure
✳️ Défis
Une surface compacte : 28 m² à optimiser pour 4 personnes (occasionnellement)
Ce projet a une saveur particulière.
Les propriétaires ont découvert Murmure grâce à l’un de mes tout premiers projets: le studio de Suresnes, qui leur a littéralement tapé dans l’œil.
Ils m’ont contactée pour repenser leur propre studio : un 28 m² situé à La Garenne-Colombes, destiné dans un premier temps à leur fils étudiant à La Défense — puis, à terme, à être loué meublé.
L’idée : créer un cocon confortable et évolutif, capable d’accueillir jusqu’à quatre couchages, sans jamais renoncer à la fluidité ni à la lumière.
La mission m’a été confiée dans sa globalité : conception, plans détaillés et suivi.
Photos Avant
Esquisses et conception
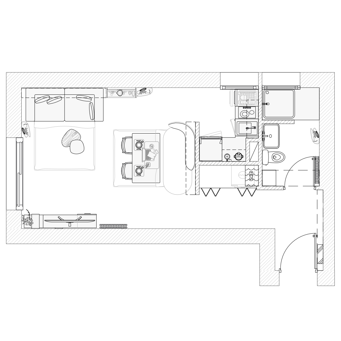
✳️ Scénario 1 : on déplie les lits mais on a une grande cuisine
✳️ Scénario 2 : on a un vrai coin nuit mais un plus petit espace de vie
✳️ Scénario 3 : on coche toutes les cases mais les espaces sont tous compacts
💬 Scénario retenu : le 1 avec sa variante B
La phase d’intentions a permis d’explorer plusieurs scénarios :
un scénario en ouvrant/exploitant tout la cuisine mais en créant le couchage principal dans le salon convertible (variantes A et B),
un scénario en utilisant l’actuelle cuisine en alcôve nuit, pour libérer tout l’espace de vie en cuisine, bureau, et salon (variantes A et B)
et un scénario avec un espace nuit dans la pièce de vie, sur estrade, avec prolongation en rangements vers la cuisine.
Après échanges avec les clients, c’est la version 1 qui a été retenue :
un plan plus fluide, préservant une vraie sensation d’espace et de respiration.
Développement du projet
Après validation du concept, le projet entre en phase de développement : définition précise des rangements, choix des matières et des couleurs, conception des éléments sur mesure, chiffrages plus précis,…
C’est ici que l’identité du lieu commence à se révéler.
Le projet entre désormais dans sa phase opérationnelle.
Les plans techniques détaillés et ajustements des prix sont en cours ; l’entreprise retenue, et le chantier se prépare pour démarrer sous peu. Les clients ont réalisé la dépose eux-même.
Planches d’ambiance
Photos du chantier : post dépose et démolition
Photos de la rénovation presque terminée
Et vous, quel est votre projet ?
nelly@agence-murmure.fr
07 61 33 21 16




