Deux appartements voisins deviennent un seul
Réunion de 2 apparts mitoyens en 1 de presque 80 m²
Conception et Projet détaillé, sans suivi des travaux
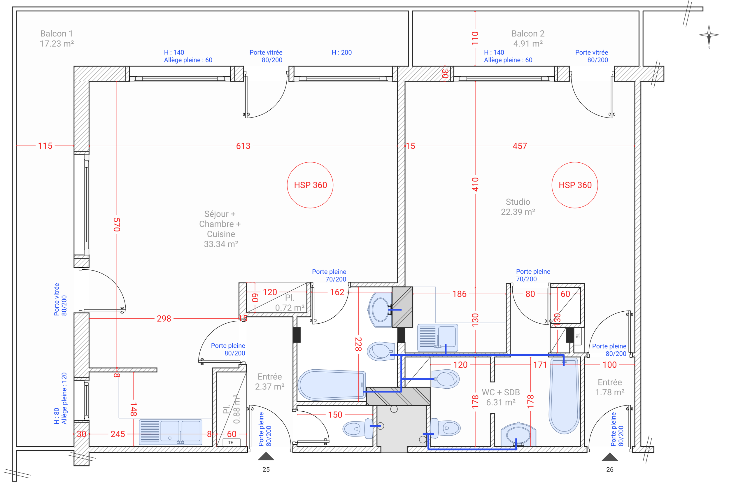
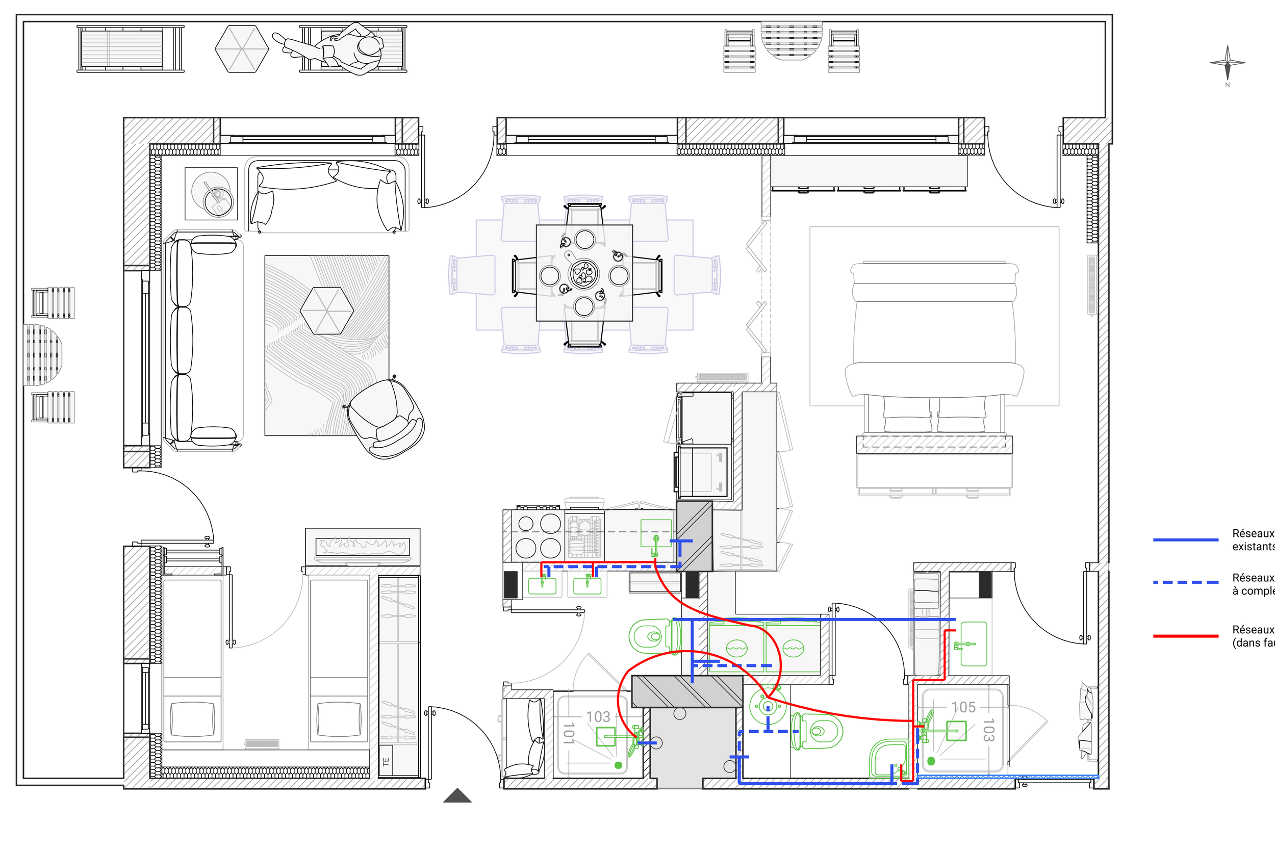
Modélisation de l’état existant et de la post-démolition
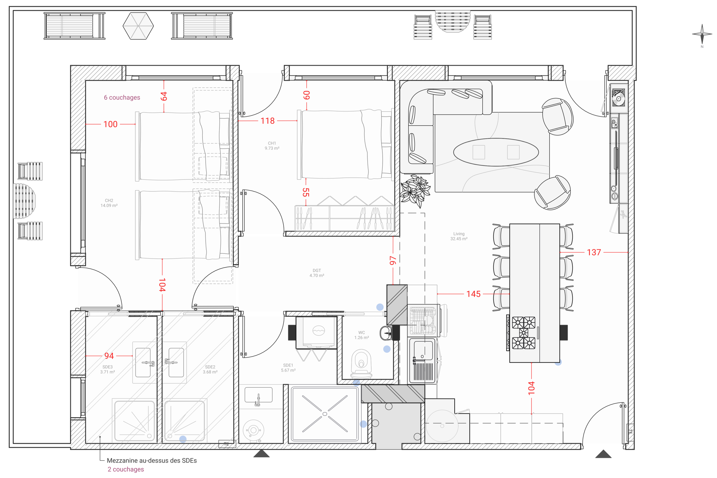
Esquisses : pistes et sélection de l’aménagement définitif
Définition du style
Vues 3D
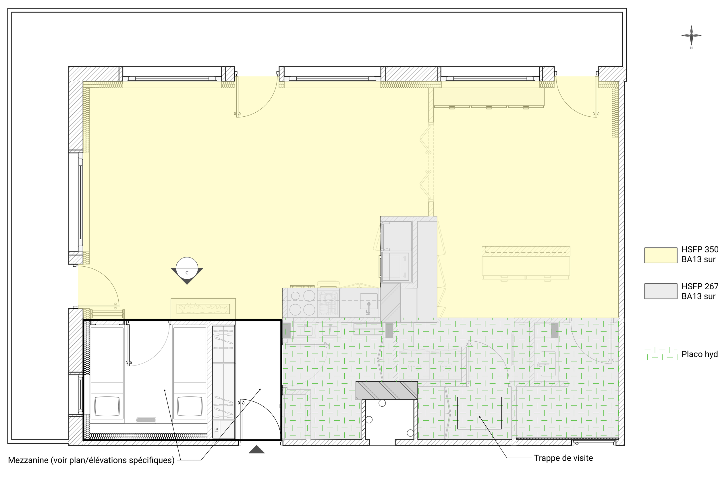
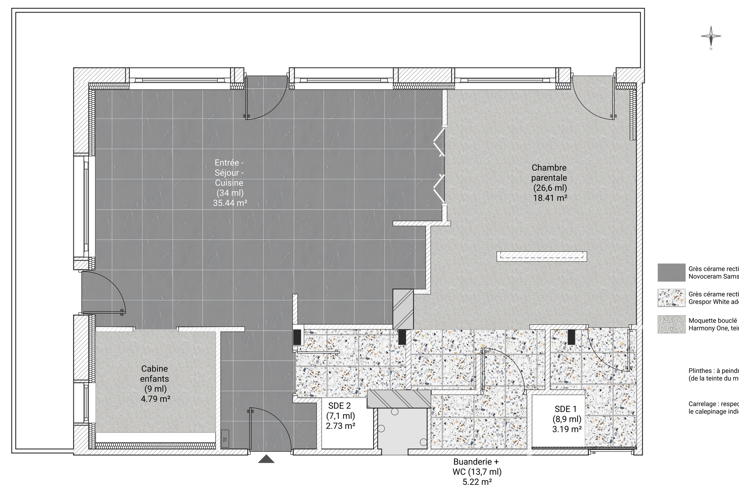
Plans détaillés pour consultation des entreprises et réalisation des travaux
Suivi de chantier
Pour ce chantier situé dans les Alpes, aucune mission de suivi des travaux n’avait été prévue.
Murmure est intervenue sur la phase de conception et sur l’élaboration du projet détaillé, comprenant la réalisation des plans ainsi que la préparation du dossier de consultation des entreprises. 😊🫶

