Rénover un studio : comment transformer 25 à 35 m² en espace confortable et intelligent
Aux Sables-d’Olonne comme dans de nombreuses villes littorales, les studios sont nombreux : résidences secondaires, investissements locatifs, pied-à-terre ou logements jeunes actifs.
Mais une chose revient souvent : le problème n’est pas toujours la surface… c’est la manière dont l’espace est pensé.
Deux studios de 28 m² peuvent offrir une expérience de vie totalement différente selon leur conception.
C’est pourquoi la rénovation d’un studio ne se résume pas à choisir un canapé-lit ou une kitchenette 😉 .
C’est avant tout un travail de conception spatiale : comprendre les usages, structurer les volumes et intégrer les fonctions intelligemment.
Dans cet article, je vous propose de découvrir plusieurs projets réalisés (ou en cours) qui illustrent une idée simple : à surface équivalente, chaque studio peut raconter une histoire différente.
Pourquoi rénover un studio demande une conception très précise
On considère souvent les studios comme de “petits projets”. En réalité, c’est souvent l’inverse.
Plus l’espace est réduit, plus chaque décision compte.
Dans 25 à 35 m², il faut généralement intégrer :
un espace nuit confortable
une cuisine fonctionnelle
un coin repas
un salon
des rangements suffisants
parfois un bureau ou des couchages supplémentaires
Sans oublier la circulation, la lumière naturelle, les ouvertures ou les contraintes techniques.
Dans ces projets, l’objectif n’est pas de remplir l’espace avec du mobilier.
L’enjeu est plutôt de structurer l’espace intelligemment pour que chaque mètre carré “travaille”.
Projet 1 – Transformer une contrainte forte en atout
Dans ce studio d’environ 30 m², le point de départ était particulièrement complexe :
une dalle brute
un pilier structurel au milieu de la pièce
des ouvertures uniquement sur une façade
Le programme, lui, était ambitieux : créer un véritable coin nuit, une cuisine complète, un espace repas, un salon, un bureau et une salle d’eau avec WC & lave-linge.
La conception s’est appuyée sur une idée simple : organiser les différentes fonctions autour du pilier central pour structurer naturellement l’espace.
Résultat : un studio fluide, lisible, où chaque zone trouve sa place sans donner l’impression d’un espace encombré.
Ce projet a d’ailleurs été revendu (plusieurs années après sa rénovation) bien au-dessus du prix du marché local, preuve qu’un agencement bien pensé peut réellement valoriser un bien.
Tous les détails du projet sont sur ce lien.
Projet 2 – Un studio pour vivre… et accueillir
Dans ce second projet, l’objectif était très différent.
Le studio devait servir de résidence principale pour un étudiant, tout en permettant à ses parents & sa soeur de venir occasionnellement.
La demande était donc claire : créer deux couchages doubles dans un espace compact, sans sacrifier le confort quotidien.
Pour y parvenir, plusieurs interventions ont été nécessaires :
ouverture partielle d’une cloison pour apporter plus de lumière
amélioration des menuiseries pour le confort thermique et acoustique
intégration de couchages intelligemment positionnés
optimisation des rangements
L’idée n’était pas simplement de “caser des lits”, mais de permettre au studio de fonctionner confortablement au quotidien.
Tous les détails du projet sont sur ce lien.
Projet 3 – Optimiser un studio pour la location saisonnière
Les attentes sont encore différentes lorsqu’un studio est destiné à la location courte durée.
Les propriétaires souhaitent généralement :
un logement attractif
une circulation fluide
des rangements pratiques pour les voyageurs
un espace agréable malgré la surface compacte
Dans ce projet de 25 m², l’enjeu principal était de repenser entièrement la distribution pour créer un logement plus confortable et plus lisible.
Depuis la rénovation, les retours des voyageurs sont très positifs, notamment sur :
la sensation d’espace
la fonctionnalité du logement
le confort global malgré la surface
Une conception bien pensée peut vraiment améliorer l’expérience des occupants… et l’attractivité locative du bien.
Tous les détails du projet sont sur ce lien.
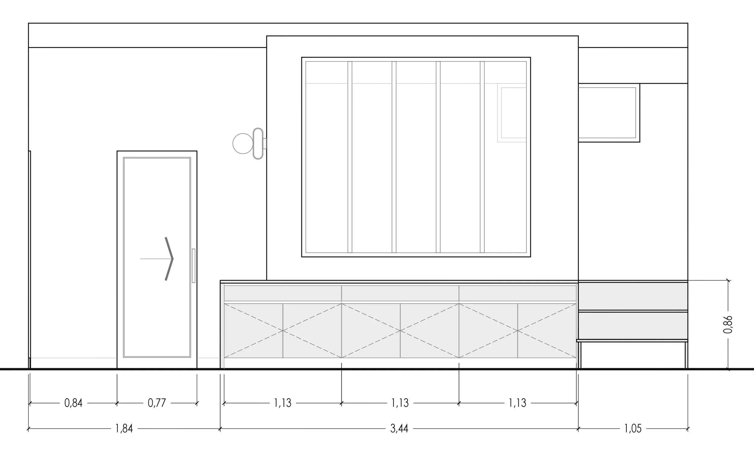
Projet 4 – Exploiter la verticalité pour créer une chambre
Dans certains studios, la hauteur sous plafond peut devenir un véritable levier d’optimisation.
Dans ce projet, la solution a été de créer une chambre sur estrade, séparée du salon par une verrière.
Sous cette estrade, plusieurs rangements intégrés ont été aménagés côté salon et côté salle d’eau.
Cette intervention permet de :
structurer clairement les fonctions du logement
créer un vrai espace nuit
augmenter les capacités de rangement
donner du caractère à l’appartement
La verticalité est souvent une ressource sous-exploitée dans les petits espaces.
Tous les détails du projet sont sur ce lien.
Projet 5 – Un studio flexible pour une résidence secondaire
Dans ce projet en cours de conception, le studio doit pouvoir accueillir différents usages :
week-ends en bord de mer
télétravail ponctuel
repas avec des invités
couchage supplémentaire indépendant
La solution imaginée repose notamment sur un meuble transformable sur mesure :
meuble TV au quotidien
bureau orienté vers la vue lorsque nécessaire
table pour quatre personnes lors des repas
Ce type d’agencement permet de créer un espace polyvalent sans surcharger le volume.
Tous les détails du projet sont sur ce lien.
Combien coûte la rénovation d’un studio aux Sables-d’Olonne ?
Chaque projet étant différent, les budgets peuvent varier selon :
l’état initial du logement
l’ampleur des travaux
la qualité des matériaux
la part d’agencements sur mesure
Dans les projets présentés ici, la rénovation complète des studios s’est située entre 15 000 € et 35 000 € pour une surface d’environ 25 à 35 m².
Ce type d’investissement permet souvent :
d’améliorer significativement le confort du logement
de valoriser le bien à la revente et/ou d’augmenter l’attractivité locative
Pour des interventions plus légères (décoration ou mise en valeur locative sans transformation structurelle), il existe également des solutions comme le home staging.
Optimiser un studio : une question d’usage avant tout
Rénover un studio ne consiste pas seulement à optimiser des mètres carrés.
Il s’agit surtout de comprendre comment les habitants vont réellement utiliser l’espace.
Résidence principale, pied-à-terre, location saisonnière, logement étudiant… chaque projet appelle une réponse différente. C’est pourquoi deux studios de même surface peuvent offrir des expériences de vie totalement différentes.
On pourrait presque faire un parallèle avec la météo : on parle souvent de température réelle et de température ressentie. Dans un logement, c’est un peu la même chose. Il y a les mètres carrés réels… et les mètres carrés ressentis. Un studio bien conçu ne change pas la surface sur le plan. Mais il peut transformer profondément la sensation d’espace, le confort et la manière d’habiter le lieu. Et c’est souvent là que se joue toute la différence. 😉😊
-

